很多項目為方便使用,會采用天橋、連廊將幾座建筑物連接起來。這種連接方式雖方便了相鄰建筑間的聯系和交通,但也可能成為火災蔓延的通道,因此現行規范規定需要采取必要的防火措施,以防止火災蔓延和保證用于疏散時的安全,如下:
《建筑設計防火規范》(GB50016-2014,2018年版)6.6.4 連接兩座建筑物的天橋、連廊,應采取防止火災在兩座建筑間蔓延的措施。當僅供通行的天橋、連廊采用不燃材料,且建筑物通向天橋、連廊的出口符合安全出口的要求時,該出口可作為安全出口。
但是,《建規》并沒有明確“防止火災在兩座建筑間蔓延的措施”具體是什么措施,比如建筑通往連廊的門是否應采用防火門等等。
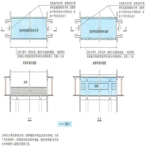
而國標圖集《建筑設計防火規范》圖示18J811-1(2019修正版)6.6.4條款的圖示中,建筑通往連廊或天橋的門均為乙級防火門,如下圖:
那么,建筑通往連接兩座建筑物的天橋、連廊的門,是否應采用防火門?最近,陜西省住房和城鄉建設廳印發的《陜西省建筑防火設計、審查、驗收疑難問題技術指南(2025年版)》中對此進行了明確回復,具體如下:
《陜西省建筑防火設計、審查、驗收疑難問題技術指南(2025年版)》5.0.5(補充GB50016-2014(2018年版)第6.6.4條)連接兩座建筑物僅供通行的天橋、連廊,應采取防止火災在兩座建筑間蔓延的措施,并應符合下列規定:
1 當采用天橋或敞開連廊連接相鄰兩座建筑并滿足相應防火間距要求時,建筑通往連廊的門可采用普通門;
2 當采用封閉連廊連接相鄰兩座建筑并滿足相應防火間距要求時,建筑通往連廊的門應為甲級防火門,連廊可不計防火分區面積及疏散距離;
3 當連廊頂部設有擋風雨棚且側面開口時,可按照敞開連廊進行設計。
可見,連接兩座建筑物的天橋、連廊的門是否為防火門取決于兩個條件:
1、兩棟建筑的防火間距;
2、是否為封閉連廊。
兩棟建筑的防火間距若不滿足要求,肯定要按規范要求采取防火措施,比如設置防火墻、甲級防火門窗等等。
也就是說,防火間距滿足要求時,則建筑通往封閉連廊的門應為甲級防火門;建筑通往天橋或敞開連廊的門,可以不設防火門,普通門即可。防火間距不滿足要求時,首先要按規范要求采取防火分隔措施,其次建筑通往天橋或連廊的門肯定也是甲級防火門。